Czyli obsługa formatu IFC w najnowszej wersji naszego programu CAD
Aktualizacja 1.1 do ZWCADa 2026 Professional wprowadziła ogromne usprawnienie, na które czekało wielu użytkowników programu. Ulepszono współpracę z formatem IFC, umożliwiając nie tylko podgląd, jak w poprzedniej wersji, ale także przeglądanie metadanych, edycję i eksport brył do popularnego wśród programów BIM formatu.
Spis treści:
Czym jest BIM oraz IFC?
BIM (ang. Building Information Modeling) to cyfrowy zapis właściwości obiektu w formie metadanych, do którego dostęp mają wszyscy uczestnicy procesu projektowego. Technologia ta umożliwia korzystanie z obiektu wielu projektantom jednocześnie, usprawniając nie tylko proces projektowy, ale również pozwalając na łatwiejszą wycenę, sprawdzenie potrzebnych materiałów oraz automatyczną ocenę spójności danych.

Dzięki temu rodzajowi zapisu danych, użytkownicy mogą również w bardzo łatwy sposób tworzyć zestawienia, tabele oraz analizy budynku. Modele BIM możemy podzielić na różne stopnie zaawansowania, przy pomocy tzw. LOD-u (ang. Level of Development):
- LOD 100 - zawiera podstawowe parametry geometryczne obiektu takie jak wysokość, objętość, lokalizację czy orientację i odpowiada projektowi koncepcyjnemu.
- LOD 200 - ma dodatkowo przybliżone ilości, wielkości i kształty i odpowiada projektowi schematycznemu.
- LOD 300 - czyli zaawansowany projekt, ma już dokładne ilości i informacje o detalach.
- LOD 350 - odpowiada projektowi wykonawczemu. Poza szczegółowo przedstawionym modelem i zdefiniowanymi opisami ma również przedstawienie tego, w jaki sposób elementy budynku łączą się różnymi systemami i innymi elementami budynku.
- LOD 400 - to stopień zaawansowania pasujący do etapu budowy obiektu budowlanego, wykorzystywany przez wykonawcę. Różne elementy modelu są połączone w określone zespoły, które zawierają informacje o produkcji, montażu oraz szczegółach takich jak kształt, rozmiar czy położenie.
- LOD 500 - to już pełna inwentaryzacja powykonawcza obiektu. Elementy są przygotowane dodatkowo na potrzeby konserwacji oraz obsługi obiektu, a ponadto zamieszczane są obowiązkowo informacje niegeometryczne, które w poprzednich poziomach były opcjonalne.
IFC (ang. Industry Foundation Classes) natomiast to otwarty format służący do wymiany informacji pomiędzy uczestnikami różnego rodzaju procesów budowlanych. Zawiera on w sobie zarówno informacje graficzne, np. model 3D, jak i tekstowe w formie parametrów i metadanych przypisanych do obiektów.
Ze względu na swoją otwartą i uniwersalną formę, może służyć jako pomost pomiędzy użytkownikami różnych programów i środowisk, umożliwiając im dzielenie się plikami bez obawy o brak współpracy.
Widzimy więc, że mimo tego, że ZWCAD nie jest programem BIM-owskim, to dzięki współpracy z formatem IFC może być pomocny w pracy z tego typu procesami.
Zalety korzystania z formatu IFC
Jak wspomniałem wcześniej, jest to uniwersalny i neutralny format, obsługiwany przez niemal wszystkie programy BIM i niektóre programy CAD. Nie ma obawy o to, że przesłany plik nie zostanie odtworzony na innym programie BIM-owskim.
Tak jak naturalnym krokiem w przód było zastąpienie desek kreślarskich programami CAD, tak przyszłość projektowania dynamicznie zmierza w kierunku bardziej rozbudowanych narzędzi. Projektowanie na modelach jest po prostu precyzyjniejsze, wydajniejsze i umożliwia lepszą współpracę użytkowników na każdym etapie projektowania.

Projekty wykorzystujące BIM zwykle robią to od samego początku. Jednak ilość danych, szczegółów i informacji może być przytłaczająca, zwłaszcza w przypadku prostszych projektów. Format IFC umożliwia dodawanie odpowiednich parametrów i metadanych, które w zupełności wystarczą innym użytkownikom projektu.
W dobie szybkiego rozwoju technologicznego, format IFC jest zdecydowanym krokiem w przód w porównaniu do klasycznych programów CAD i formatu DWG, jaki oferuje np. ZWCAD.
Jak działa współpraca z IFC w ZWCADzie 2026 1.1
Najnowsza aktualizacja naszego programu CAD dodała większe wsparcie dla formatu IFC. Obecnie obsługiwane są formaty takie jak IFC2x3, IFC4, IFC4x1, IFC4x2 oraz IFC4x3. W poprzedniej wersji ZWCADa (oraz 2025) obiekty IFC można było importować, ale jedynie w formie podglądu.

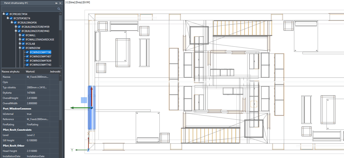
Tak wyglądał przykładowy import pliku IFC w ZWCADzie 2025. Widzimy podgląd obiektu w formie bloku, możemy przeglądać drzewko struktury i przyglądać się poszczególnym obiektom. Klikając na poszczególne pozycje, program przenosi widok na ten obiekt a w oknie danych po lewej stronie widzimy przypisane metadane. Nie ma możliwości ich edycji, jedynie dostępny jest podgląd. Można także włączać i wyłączać wyświetlanie poszczególnych segmentów.
ZWCAD 2026 1.1 natomiast działa już ze znacznie usprawnionym modułem IFC. Zobaczmy jak to tam wygląda:

Na pierwszy rzut oka panel struktury wygląda podobnie, jednak ma dodatkowe opcje. Sam podgląd również jest podobny tak jak i zaznaczenie obiektu. Różnic jednak jest kilka.
Pierwsza pojawia się już przy imporcie. Po wpisaniu polecenie IFCIMPORT wyskoczy okno importu:

Poza ustawieniem domyślnego widoku czy stylu, wybieramy tutaj również co ma zostać zaimportowane oraz gdzie.

Widzimy tutaj przykładowy projekt drogi w czterech wersjach, w zależności od tego, co zaimportujemy.
Kolejną nowością, a zarazem kluczową zmianą w ZWCADzie 2026 1.1 jest możliwość dodawania obiektów z geometrią do schematu.

Kliknięcie prawego przycisku myszy na obiekcie w panelu strukturalnym otworzy menu kontekstowe. Możemy tam kliknąć by dodać elementy z geometrią, a następnie wskazujemy na obiekt.
W powstałym menu podajemy jego nazwę, opis i wybieramy kategorię:

Mając gotowy obiekt możemy edytować jego domyśle wartości albo dodać własne metadane:

Po raz kolejny wystarczy kliknąć prawy przycisk myszy na odpowiednim miejscu i dodać własną właściwość:

Powstają w ten sposób metadane, które można edytować przez podwójne kliknięcie.

W celu edycji obiektów należy najpierw odblokować warstwy, na których się znajdują:

Dzięki temu można edytować obiekty w dowolny sposób.
To, co jest kluczowe w tej aktualizacji to możliwość eksportu obiektu CAD do formatu IFC. Dzięki temu wszystkie zmiany i edycje mają znaczenie i mogą zostać wykorzystane przez innych użytkowników.
W tym celu należy uruchomić polecenie IFCEXPORT albo EKSPORT i zapisać rysunek do formatu .ifc.
Przypomnę tylko, że funkcjonalność ta jest dostępna od wersji ZWCAD Professional 2026 SP 1.1.
